【00592 兵庫県N様】 お客様施工レポート!


兵庫県多可郡 N邸
デッキ用フェンス/米杉斜め格子タイプ

◆使用商品
 ・ウッドデッキ用フェンス・斜め格子  計8枚
 ・フェンスコーナー部材         一式
 ・エンド用竪枠(たてわく)        4本
 ・専用鋼鉄支柱(ボルトナットつき)  12本
 ・笠木 4190〜320×136×36     計5枚
      以上全てMB色
 
 

◆◇◆ コメント◆◇◆


既存のデッキがウッドフェンスでさらにグレードアップ!

既存のウッドデッキ(残念ながら当店のウッドデッキではありません)にフェンスの取り付けをご希望だったN様。
ビス止め作業も完璧にこなされ、色も雰囲気も見事にマッチ。デッキとの素材の違いもほとんど気になりません。
真ん中に扉をつけることによって、頭痛の種だった隣家の犬の不法侵入も無事解決!
広々としたデッキにプライバシーを確保、より落ち着ける憩いの空間が生まれました。
◇◆◇ 施工事例・写真館 ◇◆◇
 

 

既存のデッキとの接続はボルトナットで固定
下部に12センチ角のプレートのついた支柱をデッキ面にビスで固定。
さらにその支柱に対してフェンスをボルトナットで固定しました。

犬の進入を妨げる扉を後から発注
デッキのステップ部に別途柱を立てて、扉を取り付け。
上部はデッキ用フェンスの笠木を伸ばしてそのまま連結しました。

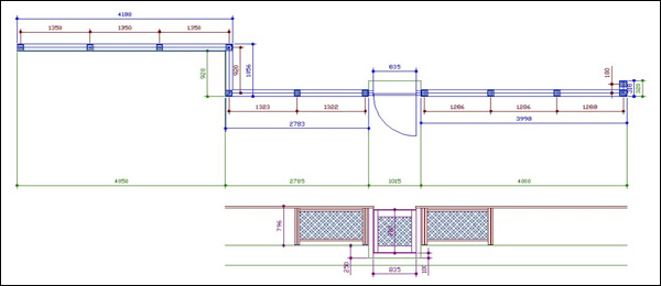
フェンスの見積もり図面です


woodpro店長より
 
美しい仕上がりに正直びっくりしました。施工をかなりきっちりしていただいている印象です。既設のウッドデッキは、いわゆるハードウッド系の高耐久木材と思われますが、当店では、この手の素材は植林が困難で安定供給がむずかしい等の理由で取り扱っておりません。実際に靴で踏んで歩くウッドデッキについては、堅さにこだわられる方も多いのですが、手に触れるケースの多いフェンスについては、手触りのいいレッドシダーなどの針葉樹が最適ですね。